Apartamento Alvalade


Arquitectura: Gabriela Gonçalves 
Localização:  Bairro das Estacas, Lisboa
Ano:  2011
Programa: Habitação / Reabilitação
Colaboradores: Gary Barber
Fotografias: Gabriela Gonçalves 


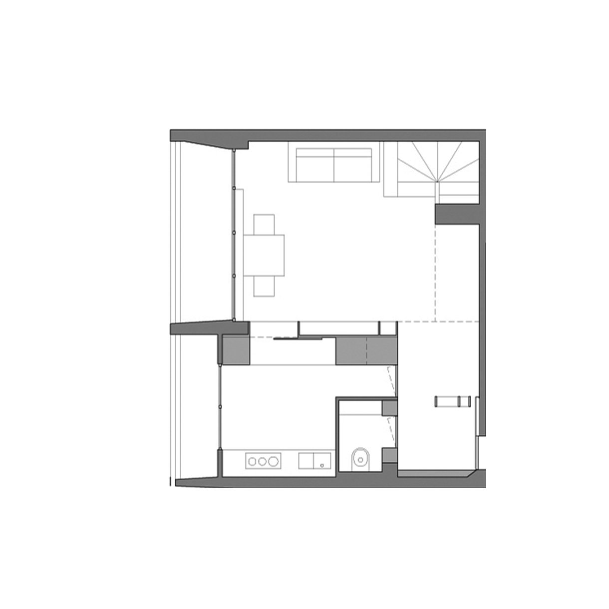
Desenhos

Apartamento em Alvalade

GGLL atelier since 2004 | Site by  bocanegra |  2020 © All Rights Reserved .