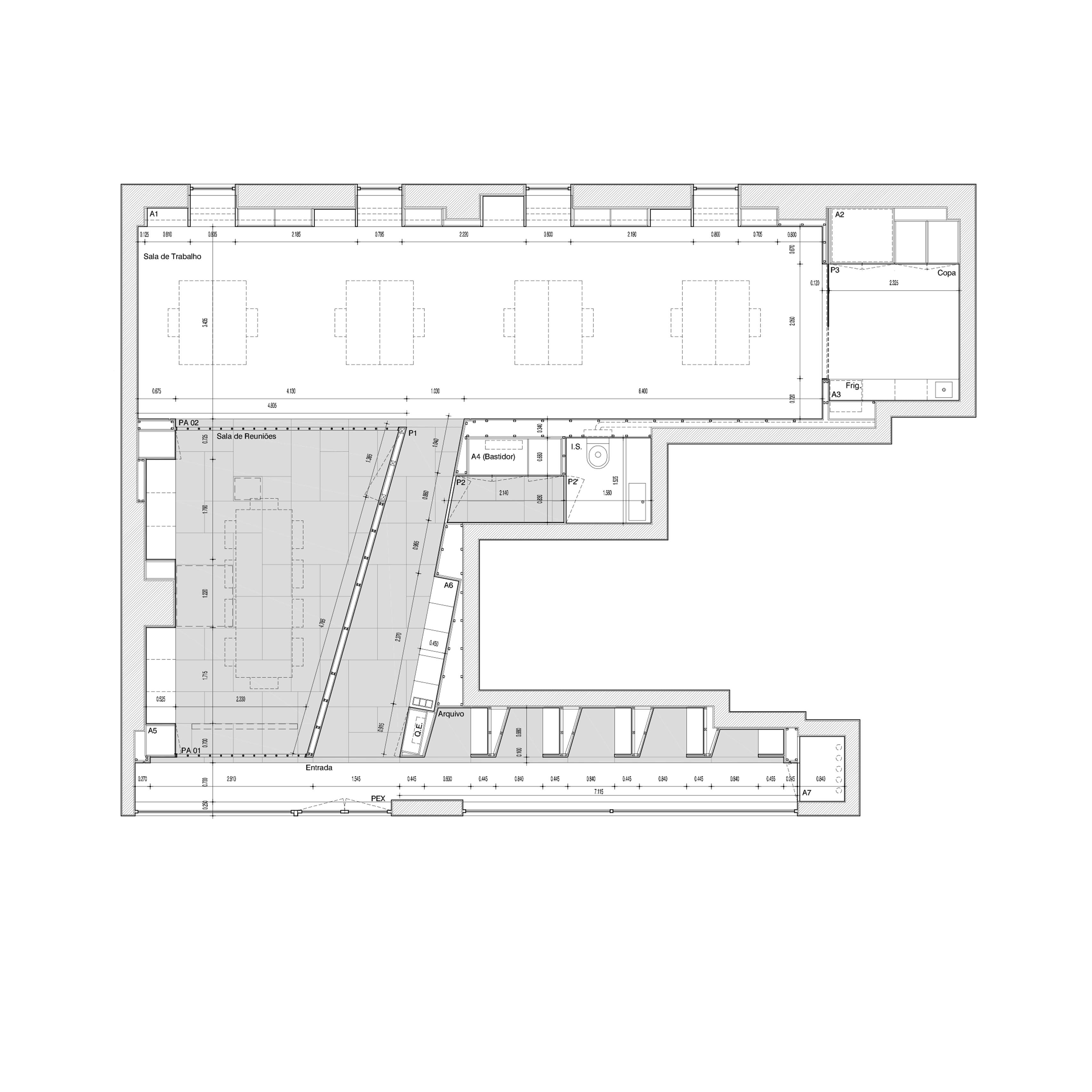
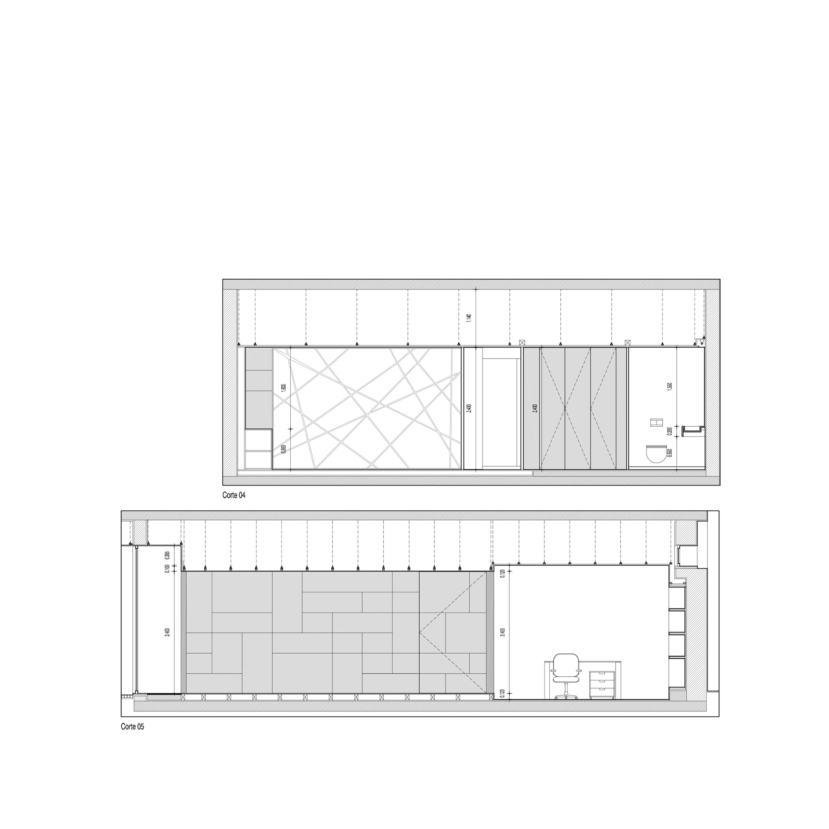
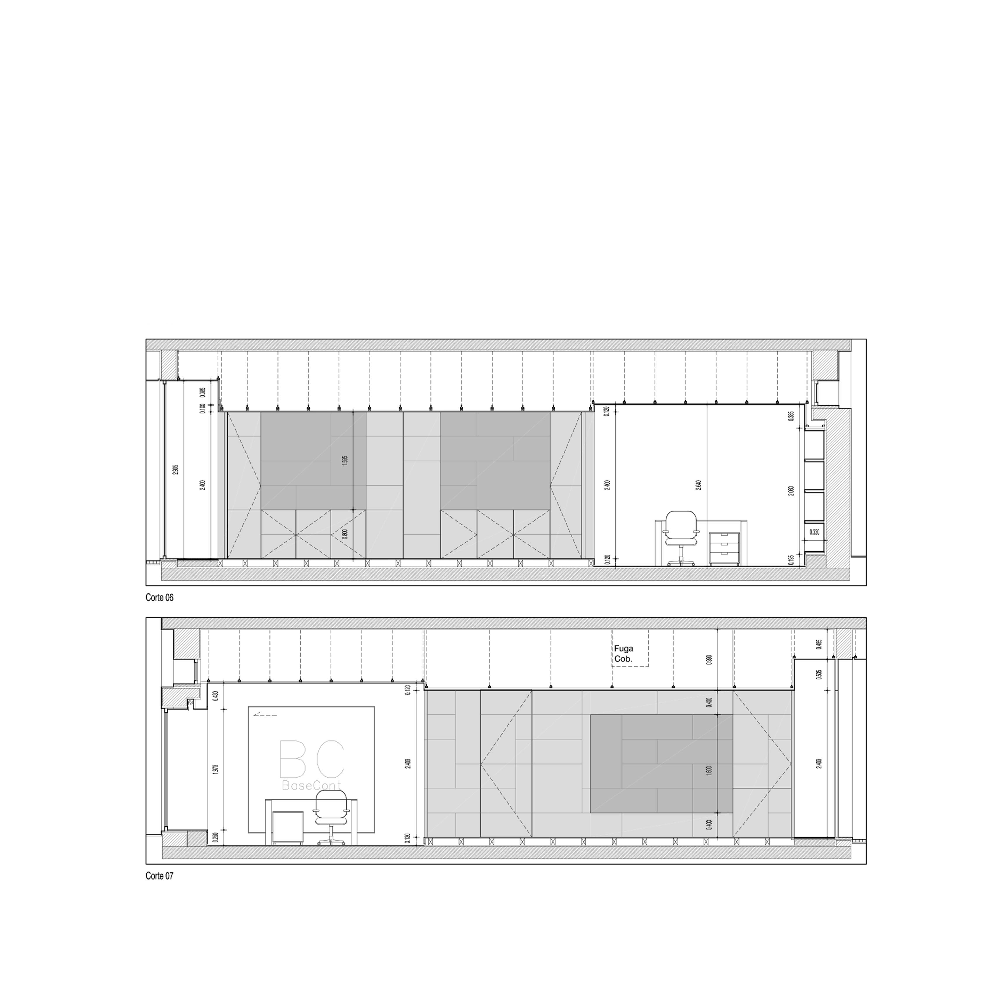
Arquitectura: Gabriela Gonçalves + Leonel Lopes
Localização: Expo, Lisboa
Ano: 2012
Programa: Serviços
Colaboradores: Miguel Malaquias, Gary Barber, Alexandre Gonçalves
Construção: Patrício Decor
Fotografias: Gabriela Gonçalves e Miguel Malaquias
Base Cont Expo





GGLL atelier since 2004 | Site by bocanegra | 2020 © All Rights Reserved .