34

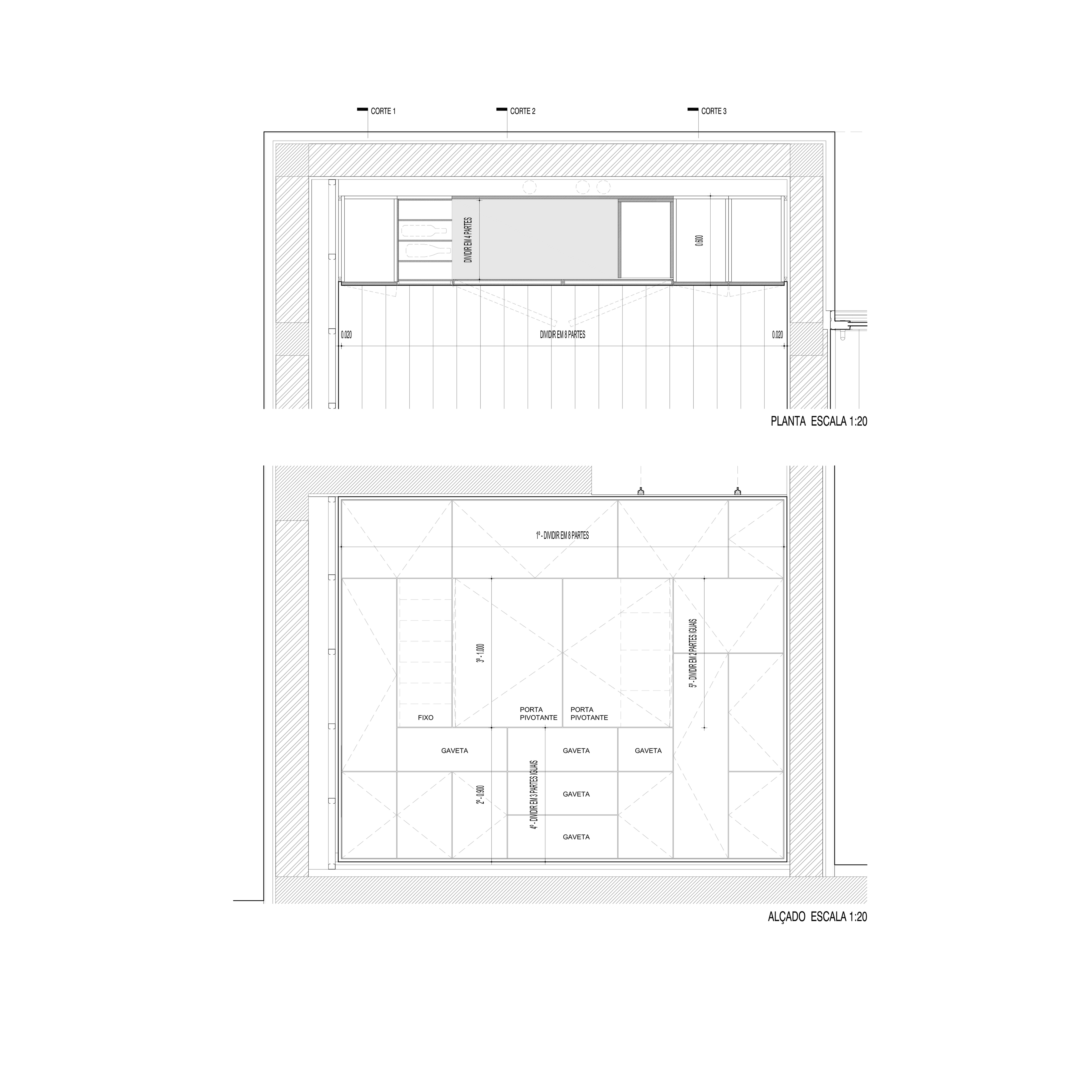
Garrafeira

Design: Gabriela Gonçalves + Leonel Lopes
Localização: Casa no Belas Club de Campo
Ano: 2018
Materiais: Madeira de Zebrano Madiça 

GGLL atelier since 2004 | Site by  bocanegra |  2020 © All Rights Reserved .