Arquitectura: Gabriela Gonçalves + Filipe Nunes
Localização: Falimas, Pêro Pinheiro
Ano: 2005
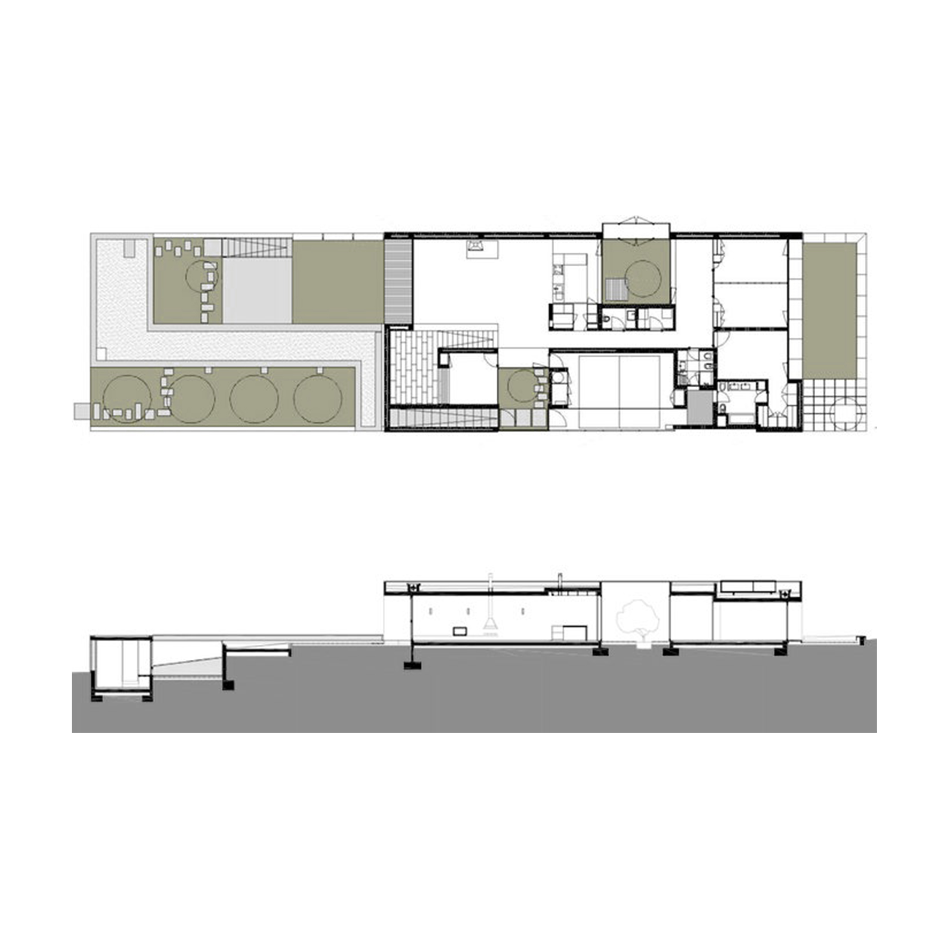
Programa: Habitação
Colaboradores: José Doroana, Luiís Virote, Miguel Malaquias, Sérgio Silva
Estrutura: Fisprojota Lda, Eng. Jorge Moreira
Construção: João F. Batalha Construções
Fotografias: Gabriela Gonçalves e Miguel Malaquias
Casa em Falimas


GGLL atelier since 2004 | Site by bocanegra | 2020 © All Rights Reserved .