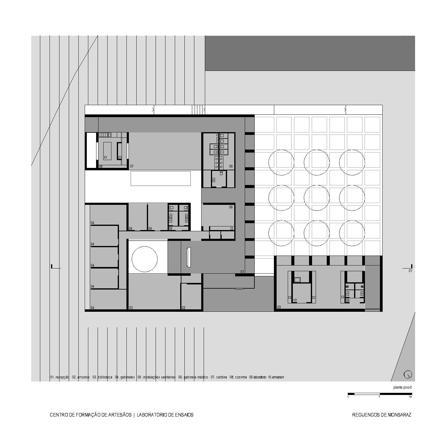
IEFP Reguengos


Arquitectura:  Gabriela Gonçalves + Leonel Lopes + Helena Botelho
Localização: Reguengos de Monsaraz
Ano:  2000
Programa: Serviços. Centro de formação
Colaboradores: Jorge P. Silva, Mafalda Almeida, Nuno Teixeira 
Estrutura: BETAR - Miguel Villar, Eng
Fotografias: Gabriela Gonçalves 


Desenhos

IEFP Reguengos

GGLL atelier since 2004 | Site by  bocanegra |  2020 © All Rights Reserved .